تفاصيل المشروع

استفسر عن العقار

يرجي تعبئة النموذج التالي وسنقوم بالتواصل معكم قريبا.

رقم العرض

وحدة A01

الدور

الدور الأول

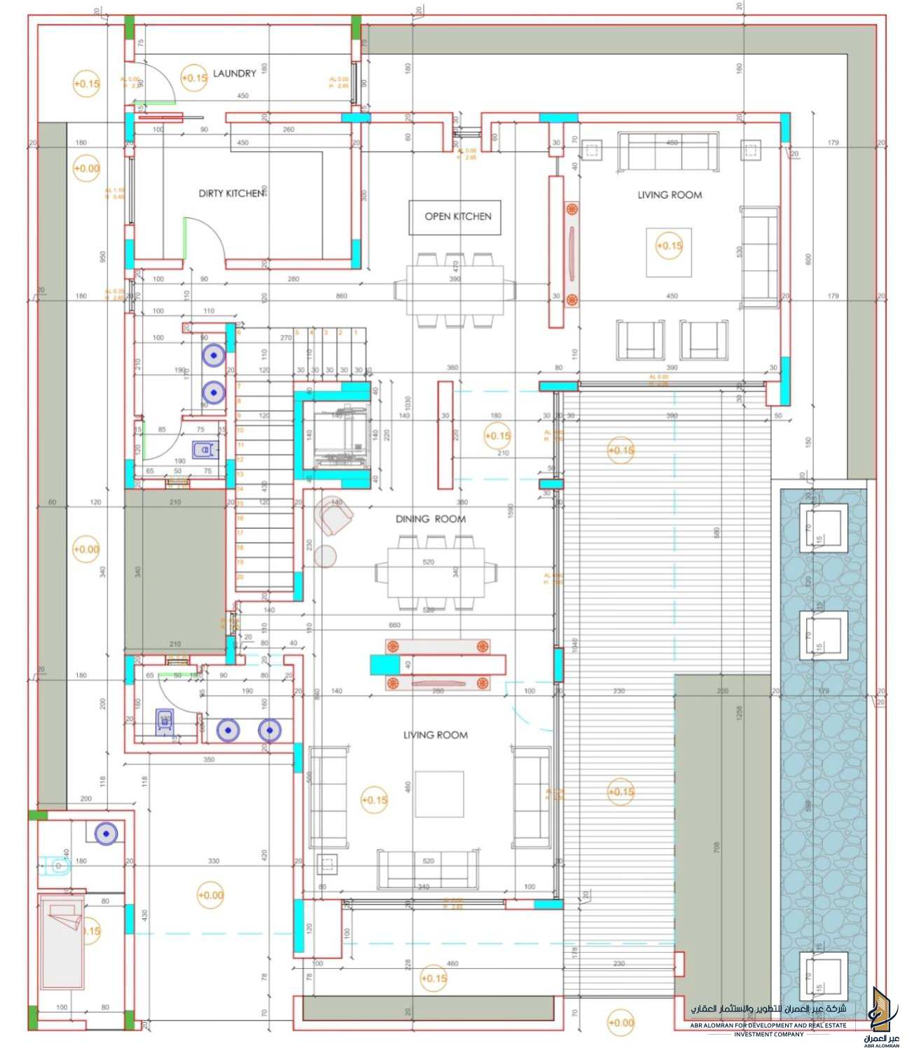
المساحة

218 م

العنوان

المدينة

الطائف

المنطقة

حي المثناة

موقع العقار على الخريطة

خدمات قريبة

مدارس قريبة
سوبر ماركت قريب
محطة وقود قريبة
مجمع طبي قريب
مطاعم قريبة

نوع العقار

شقة

المساحة

218

عدد الغرف

6

دورات المياه

3

محتويات الوحدة

6 غرفة نوم

مجلس

صالة معيشة

صالة طعام

مطبخ رئيسي

غرفة غسيل

غرفة خادمة

سطح

غرفة سائق

مستودع

المميزات

النوافذ زجاج مزدوج

بلكونة أو شرفة

جبس مقاوم للرطوبة

خدمات المياه والصرف الصحي

مخططات الوحدة

جميع الحقوق محفوظة © 2024 - شركة عبر العمران للتطوير والاستثمار العقاري